De strijd tussen Excel en Realiteit

šŸ“… 14 Januari 2026 • ā±ļø 5 min leestijd

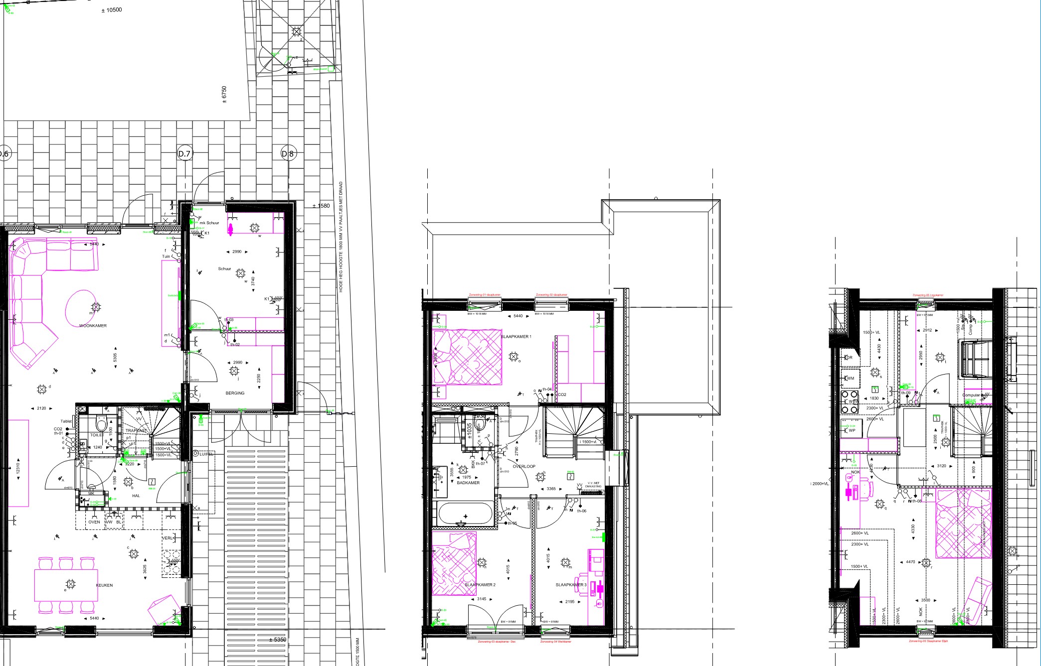
De voorbereidingen voor onze nieuwe woning zijn in volle gang. En zoals elders op de site al te lezen is: het plan is om het dit keer Ʃcht goed te doen. Geen halfslachtige oplossingen, geen houtje-touwtje infrastructuur, maar een solide basis. Vandaag stond in het teken van die basis: het in kaart brengen van het zenuwstelsel van het huis.

In mijn gedachten waren er al talloze scenario’s de revue gepasseerd. Maar gedachten zijn vluchtig; het was tijd om ze te verankeren in de realiteit. Ik besloot de plattegronden erbij te pakken en alles in te gaan tekenen, voorzien van een waterdichte codering.

De trauma’s uit het verleden

Waarom die obsessie met codering? Omdat het verleden een harde leerschool is geweest. Ik weet hoe het voelt om jaren later wanhopig op zoek te zijn naar die Ʃne specifieke data-aansluiting. Zelfs met een professionele datatester in de hand verandert zo'n klus al snel in een frustrerende workout: vijf keer de trap op en af, tester erin, tester eruit, en nog steeds geen signaal. Dat soort momenten herinneren je eraan dat technologie, hoe geavanceerd ook, je genadeloos kan straffen voor luiheid in het verleden. Dat moest en zou anders.

Het Utopische Stappenplan

Ik stelde een plan op dat in theorie niet kon falen:

  • Alles intekenen op de plattegrond.
  • Een lijst maken van de diverse onderdelen met logische naamgeving.
  • Alles voorzien van een unieke code.

Het klonk als een goed plan. Een perfect plan zelfs. Vol goede moed verzamelde ik alles wat we nodig hadden (en stiekem vooral alles wat ik wilde hebben). Ik opende Excel, het favoriete gereedschap van de controlfreak, en creƫerde een prachtig overzicht. Een strakke IP-tabel, alles netjes op volgorde, gekoppeld aan datapunten en IO-devices.

Excel Data Punten Overzicht
Het theoretisch perfecte overzicht...

Aan het einde van de rit had ik een plattegrond vol symbolen en een spreadsheet die klopte als een bus. Dacht ik.

De desillusie van de praktijk

Toen kwam de botsing met de werkelijkheid. Wat er in een Excel-sheet prachtig gesorteerd uitziet, volgt zelden de logica van een fysiek huis. De volgorde op mijn lijst dwong me tot een chaotische hinkel-route op de tekening.

Dus: alles wissen. Opnieuw beginnen. Dit keer de omgekeerde weg: de tekening leidend maken en die volgorde overnemen in de spreadsheet. "Zo gezegd, zo gedaan," zou je zeggen. Na een uur nauwgezet invullen, controleren en dubbelchecken leek het te kloppen. Ik begon de codes over te nemen op de tekening, tot ik tot de pijnlijke ontdekking kwam dat ik precies dat ene aansluitpunt was vergeten waarvan ik zeker wist dat ik het gehad had.

Opzet Woning Plattegrond
...versus de weerbarstige praktijk op de plattegrond.

De eindeloze 'Loop'

"Morgen weer een dag," dacht ik nog. Maar een nachtje slapen brengt niet alleen rust, het brengt ook nieuwe ideeƫn.
"Eigenlijk willen we daar toch nog een extra data-punt."
"En als we dan toch bezig zijn: een camera bij de achterdeur is essentieel."

En zo begon het hele circus opnieuw. Dit proces heeft zich ongeveer een week herhaald. Intekenen, lijst maken, fout ontdekken, feature toevoegen, lijst aanpassen, volgorde kwijt zijn, opnieuw beginnen. Het leek wel een script met een infinite loop.

Acceptatie: Functie boven Vorm

Uiteindelijk kwam ik tot een conclusie die voor de perfectionist in mij lastig te verkroppen was, maar voor de realist een verademing: het is geen wereldramp als data-aansluiting D01 straks fysiek naast D27 zit.

De esthetiek van een oplopende nummerreeks op de muur is ondergeschikt aan de werking van het systeem. Het belangrijkste is dat het straks wƩrkt, en dat ik in het patchpaneel in ƩƩn oogopslag zie wat waarheen gaat. Dat het huis slim is, maar niet zo complex dat ik zelf de weg kwijtraak.

De eindstand op papier:

  • šŸ“” 48 Data-aansluitingen (de levenslijnen voor de lokale AI en servers).
  • šŸ¤– 99 Individuele devices, variĆ«rend van:
    • Actoren en Thermostaten
    • CO2-sensoren
    • Deur- en raamcontacten
    • Bewegingsmelders

Het is een complex geheel geworden, maar wel eentje die klaar is voor de toekomst. Nu nog "even" aanleggen. Maar dat is een zorg voor later; voor nu is de papieren tijger getemd.

← TERUG NAAR OVERZICHT
NL | ENG